ZURÜCK ZU



RETURN TO



REGRESAR A


 QUICK-

 BUTTON

 

NEON

Die DESIGNLINIE "Neon" ist aus der früheren Linie "Extravagance" entwickelt worden. Ihre Herstellung wird mit den höchsten Qualitätsmerkmalen erfolgen. Die Grundrisse des DESIGNBEREICHES TRADITIONELL sind vom Prinzip her die gleichen wie bei den DESIGNLINIEN "Standard" und "Kubus".

 

PDH - POST DESIGN HOMES


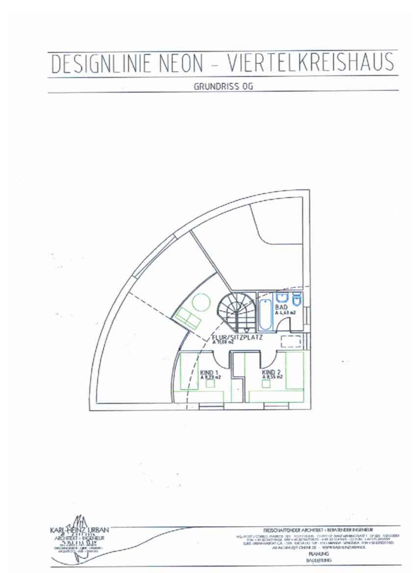
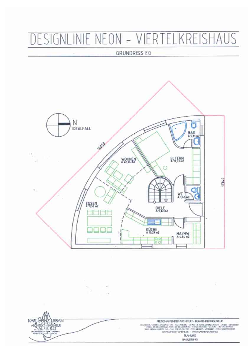
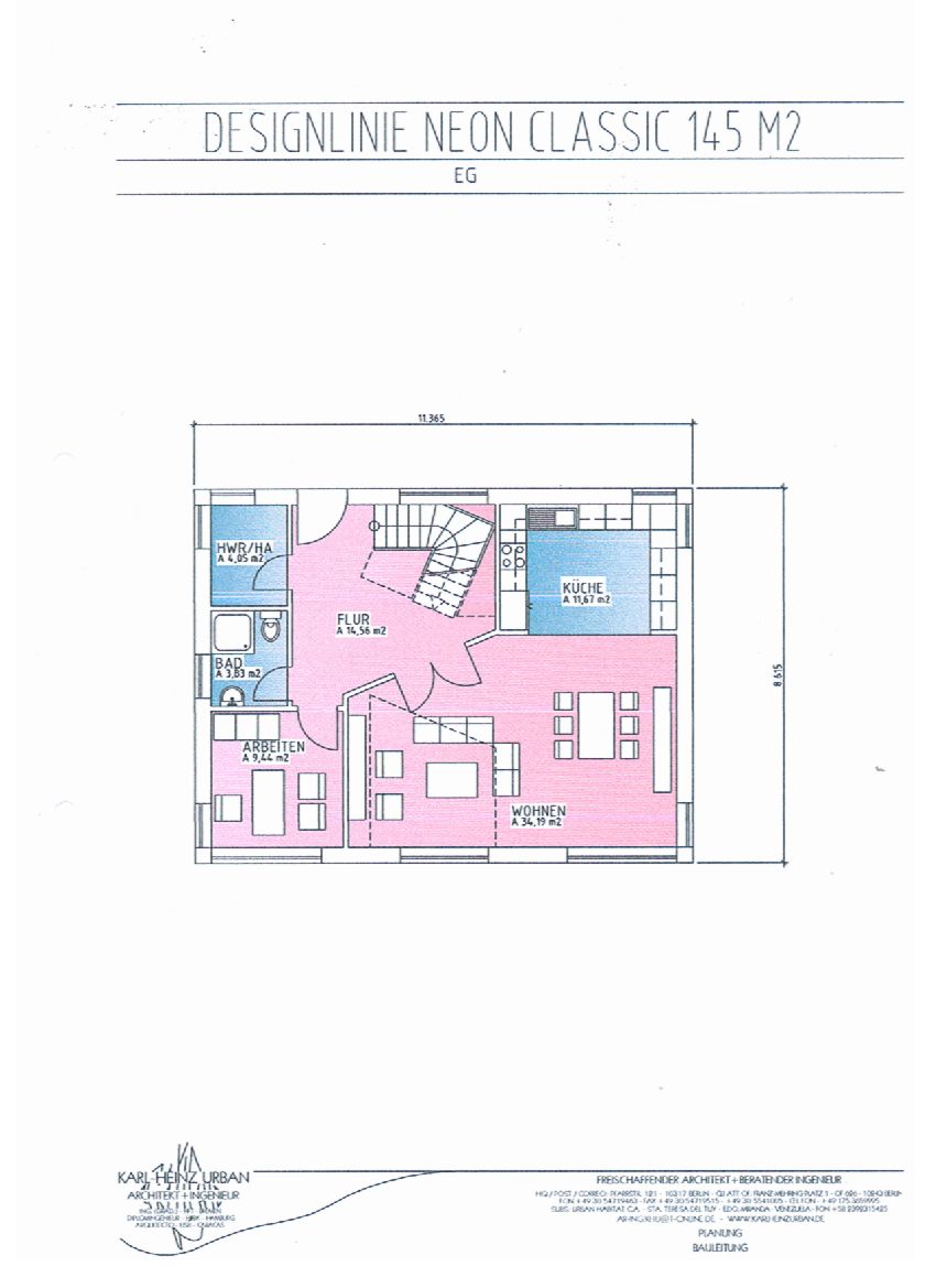
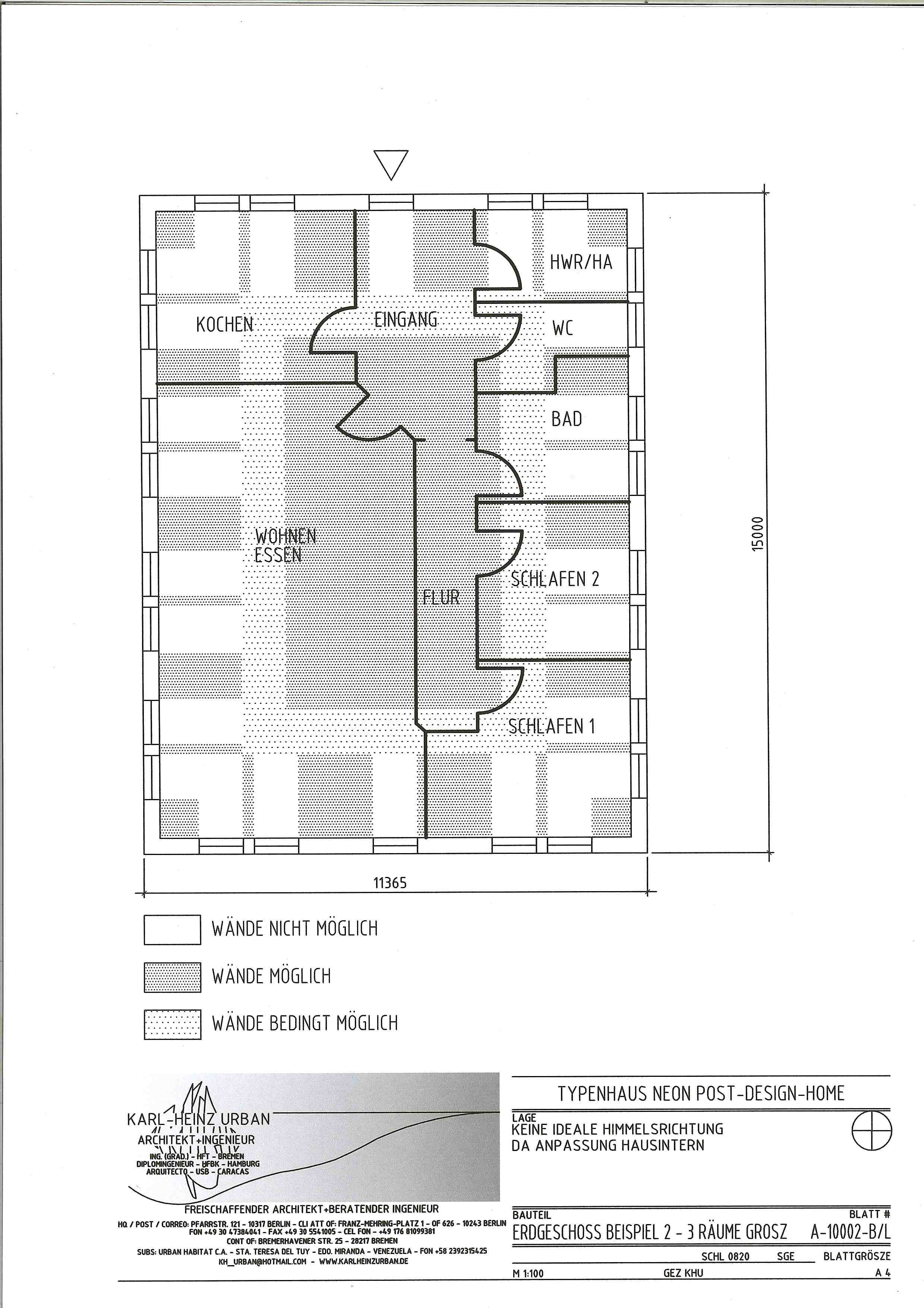
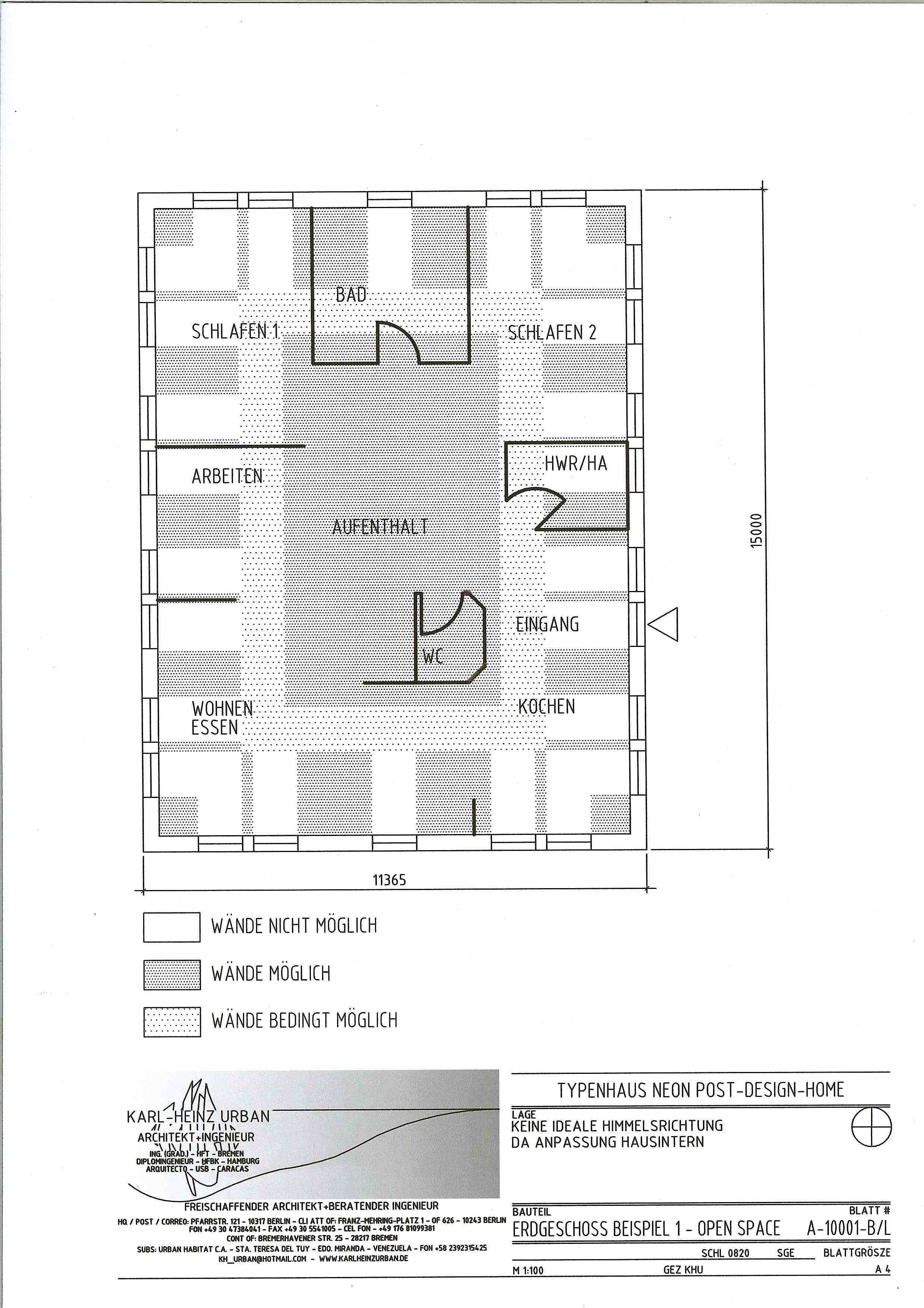
Die Designlinie NEON wird durch ein neues Modell erweitert, das sich dadurch auszeichnet, dass in einer sehr einfachen und klaren Kubatur (die natürlich auch Kurven beinhalten kann) Flächen zur Verfügung gestellt werden, die individuell beplant werden können. Gewisse Vorgaben ergeben sich aus den Fensteröffnungen, die paarweise in einem gewissen Rythmus angeordnet sind. Im Vorfeld kann der Kunde hier gewisse Änderungen vorgeben, ebenso bei der Form der Kubatur. Eine pdf-Datei zu einem beispielhaften Basisgrundriss von ca. 145 m2 ist

HIER abrufbar.


Wie schon im Juli angekündigt, werden Festkosten inkl. der Betreuung bis zum Abschluss der Bauarbeiten abgerechnet. Im Inneren des Hauses können nach den Wünschen des Bauherrn die Raumeinbauten im Rahmen der Design-Build-Methode erfolgen, wobei der Bauherr sich alle Sub-Produkte entweder von meinem oder über mein Büro beistellen bzw. einkaufen lassen kann oder dies auch selbst veranlassen kann, inkl. Hilfestellung meines Büros hierzu, da die Betreuung - wie gewohnt - bis zum Abschluss des BV gewährleistet ist, so wie in dieser

BAUBESCHREIBUNG vorgegeben.
 


Hier der historische Vorläufer:


NEON

The design line "Neon"  is here presented, develloped from the former design line Extravagance".  Plants of Design Area Tradtionell are basicly the same as design lines "Standard" and "Kubus".

 




PDH - POST DESIGN HOMES


The new model is characterized as a very simple and clear cubic volume (which, of corse, can be curved). Within this volume are areas  available for individual planning of rooms and spaces. Certain limits are given by the paired windows, installed in an established rythm. During the pre design process, the client can introduce certain changes, as well to the window distribution, as to the volume. A pdf-file is available for a basic ground floor of about 145 sq mts, under this
BUTTON.



The costs will be fixed incl. our assistance til the conclusion of construction. In the interior of the house, by design-build-method, spaces will be organized, while the client buys and builds - or even give the orders to my office - the materials, services, and finishings. Full assistance of my office will be guaranteed until the building is concluded, as usual and according to this

BUILDING SPECIFICATIONS (ONLY GERMAN)






Foto: Historic preceder


NEON

Aquí es presentada la línea de diseño "Neon", desarrollada a partir de la anterior línea "Extravagance". Las plantas del Area de Diseño Traditionell son en grandes rasgos las mismas que las de las líneas de diseño "Standard" y "Neon".

 

 

PDH - POST DESIGN HOMES


El nuevo modelo se caracteriza por una volumetría sencilla y clara (se puede trabajar con curvas, por supuesto). Dentro de esta volumetría se ubican áreas para la planificación individual de habitaciones y espacios. Ciertas limitaciones se presentan por la ubicación, en pares, de las ventanas, además colocados en un ritmo preestablecido. Durante el proceso de pre diseño, el cliente puede introducir ciertos cambios, tanto en la distribución de las ventanas, como en la volumetría. Un archivo pdf de una planta básica de unos 145 m2 está a disposición bajo este BOTON.

Los costos van a ser fijos, incl. nuestra asistencia hasta el final de las obras. Dentro de la volumetría, el cliente podrá efectuar - bién por su cuenta o através de mi oficina - la ejecución y acabado de los espacios por él deseados, en el marco del design-build-method, contando con la asistencia de mi oficina, cómo ya se ha expresado y como es costumbre fijado en la

DESCRIPCION DE OBRAS (Solo en alemán)
 







Abajo el precedente histórico:

 

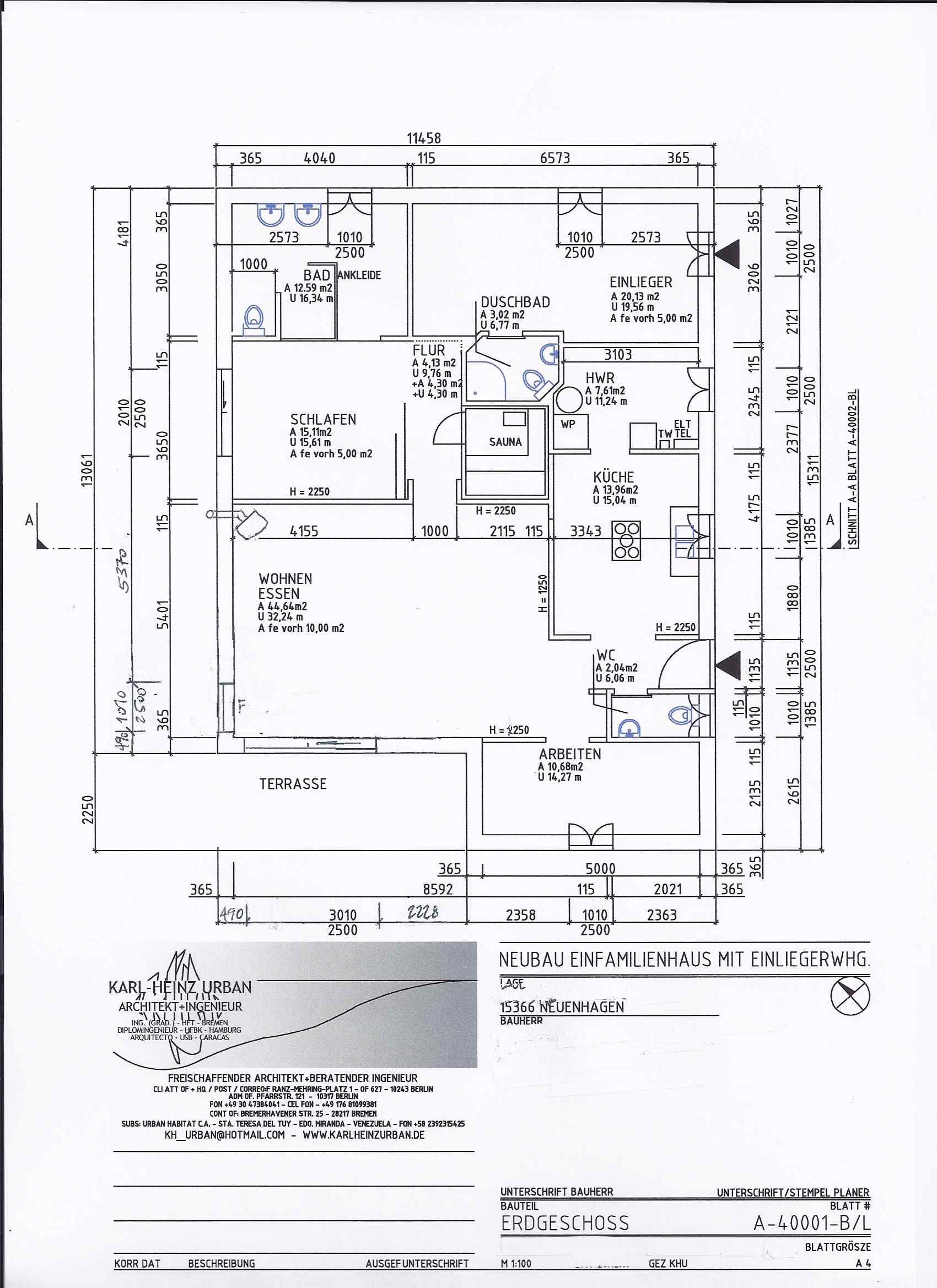
KOSTEN SIEHE BLATT HAUSKOSTEN

 

ANSICHTEN

  - DESIGN FEATURES  -  FACHADAS EJEMPLO

 

 

 

POST DESIGN HOMES (145 M2)   UND SO WOHNT DER BAUCONSULTER - BAUPLANER



 

 

Der Grundriss und die 3-D-Simulation des Architektenhauses


Fotos







Beispiel für den DESIGNBEREICH Tradition:


Example Design Area Tradition:


Ejemplo para el Area de Diseño Tradition:



 

 

   

 



Beispiel für den DESIGNBEREICH Avantgarde (Grundrisse wie Designlinie Mediterran):



Example for design Area Avantgarde (Plants as design line Mediterran):



Ejemplo para el Area de Diseño Avantgarde (Plantas como línea de diseño Mediterran):



 

 

   

 

 

 



Das Ökohaus mit ca. 120 M2



The ECO-Home with aprox. 120 M2



La Casa Eco con aprox. 120 M2



 

 

  

 

  

 

 



Weiteres Modell



New model



Nuevo modelo



 

 

  

  

 



Vorstudie (früheres Modell Extravagance)



Study (former model Extravagance)



Estudio (Anterior modelo Extravagance)



 

 

 

   

 

 

NACH OBEN - TOP - INICIO DE PAGINA